Šalovci 162
9204 Šalovci
Občina Šalovci je bila uspešna na javnem razpisu Ministrstva za kohezijo in regionalni razvoj za revitalizacijo objektov javne infrastrukture na obmejnih problemskih območjih za leto 2025. Pridobila je 100-odstotno sofinanciranje projekta "Revitalizacija mansarde za močnejšo skupnost občine Šalovci" v skupni vrednosti 427.157,80 EUR.
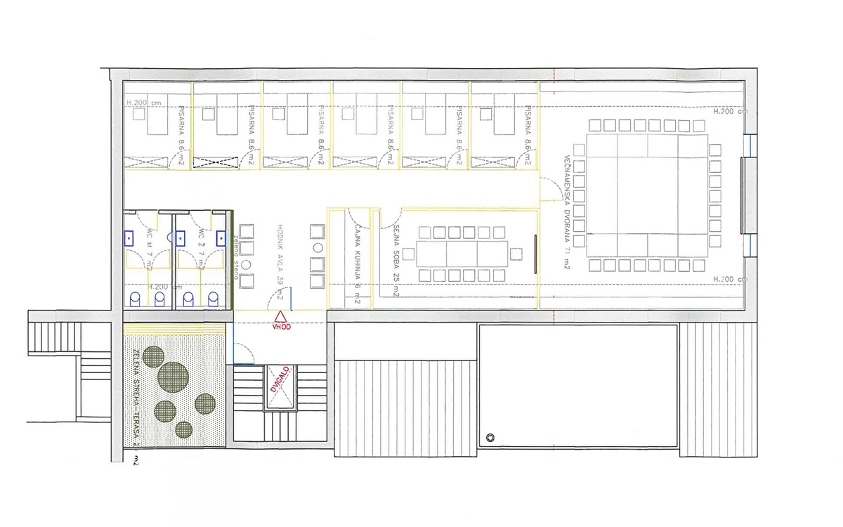
Namen projekta je obnova in sodobna preureditev trenutno neizkoriščenih mansardnih prostorov v središču občine v Šalovcih, ki bodo po prenovi služili kot osrednje stičišče za druženje, povezovanje in izvajanje različnih aktivnosti za lokalno skupnost.
Prenovljena mansarda, ki bo obsegala 206,60 m² novih uporabnih površin, bo omogočala delovanje številnih lokalnih in regionalnih organizacij in društev, spodbujala podjetništvo, kulturno ustvarjanje in izobraževalne aktivnosti, obenem pa zagotavljala boljšo dostopnost storitev prebivalcem občine ter širši javnosti. Vzpostavljeni bodo tako pisarniški prostori, kot tudi prostori za izvedbo delavnic in dogodkov.
Projekt, ki se bo zaključil v oktobru 2025, vključuje obnovitvena in vzdrževalna dela na javni infrastrukturi, pri čemer bo poudarek na trajnostnih rešitvah, kot so elementi modre in zelene infrastrukture. Poleg same obnove so v času izvajanja in po zaključku projekta predvidene tudi številne aktivnosti, dogodki in programi, ki bodo prispevali h krepitvi socialne kohezije ter dvigu kakovosti življenja v občini.