Šalovci 162
9204 Šalovci
Občina Šalovci je objavila javno naročilo za izgradnjo Športnega centra Šalovci. Na podlagi javnega naročila je kot najugodnejši ponudnik za izvedbo del bilo izbrano podjetje Zidarstvo Maučec iz Gančan. Župan Občine Šalovci Iztok Fartek in predstavnik podjetja Zidarstvo Maučec sta podpisala gradbeno pogodbo za izvedbo del. Vrednost del znaša dobrih 280.000 evrov, dela pa naj bi bila končana do konca letošnjega leta. Celotna vrednost projekta je ocenjena na dobrih 309.000 evrov.
Občina Šalovci je bila uspešna na Javnem razpisu Ministrstva za gospodarstvo, turizem in šport za sofinanciranje investicij v športno infrastrukturo za leto 2024. Za projekt Športni center Šalovci bo občina prejela 100.000 evrov sofinancerskih sredstev, ostala sredstva bo zagotovila iz proračuna.
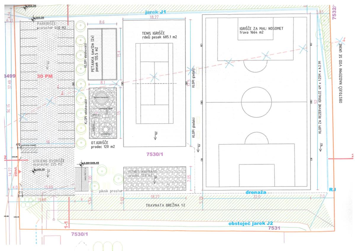
Občina bo v okviru projekta zgradila dodatne športne površine na območju obstoječega športnega centra, ki bodo namenjene vsem generacijam. Načrtuje se izgradnja igrišča za mali nogomet, tenis in petanko, zunanjih fitnes naprav ter otroškega igrišča. Zgrajen bo tudi manjši večnamenski objekt – nadstrešnica, uredilo pa se bo tudi parkirišče.
S posodobitvijo Športnega centra v Šalovcih se bodo bistveno izboljšale možnosti za rekreacijo v občini. Na ta način želi občina dodatno spodbujati občanke in občane za rekreacijo in šport na prostem. Omogočeno bo namreč izvajanje športne vadbe za otroke, odrasle in starejše. S projektom bomo tako prispevali k izboljšanju zdravja prebivalcev, več bo možnosti za športno udejstvovanje v občini, z novo infrastruktura pa bomo izboljšali tudi ponudbo za obiskovalce.